CAPE CORAL | FORT MYERS | BONITA SPRINGS | ESTERO | PORT CHARLOTTE | PUNTA GORDA | NORTH PORT
SELECT FROM ANY OF OUR HOME PLANS AND MAKE ANY MODIFICATIONS THAT FIT YOUR NEEDS. IF NONE OF THEM SUIT YOUR STYLE, GET IN TOUCH WITH US TODAY TO CREATE A CUSTOMIZED FLOOR PLAN THAT CATERS TO YOUR UNIQUE NEEDS.
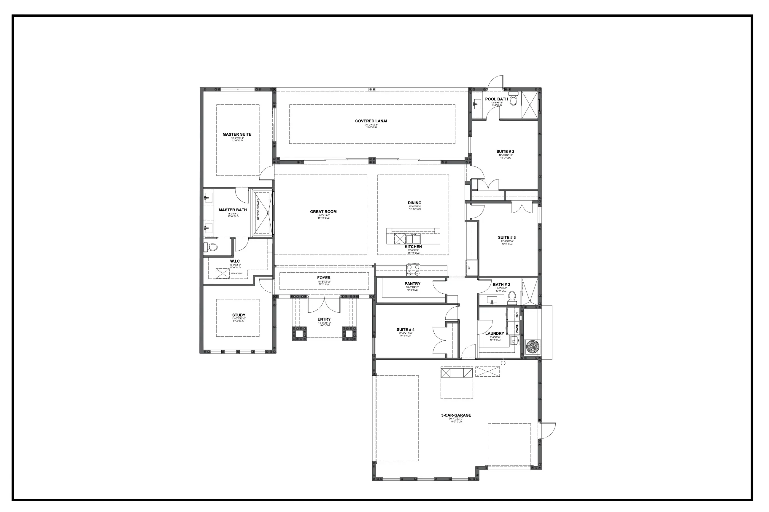
Sq. Footage
| Living Area | 2,405 |
| Garage Area | 697 |
| Covered Lanai | 445 |
| Entry Area | 96 |
| A/C Pad | 21 |
| Total Area | 3,664 |
Sq. Footage
| Living Area | 2,515 |
| Garage Area | 697 |
| Covered Lanai | 468 |
| Entry Area | 96 |
| A/C Pad | 21 |
| Total Area | 3,797 |
Sq. Footage
| Living Area | 2,614 |
| Garage Area | 681 |
| Covered Lanai | 309 |
| Entry Area | 36 |
| Total Area | 3,640 |
Sq. Footage
| Main Floor Living Area | 2,614 |
| 2"* Floor Living Area | 730 |
| Balcony | 153 |
| Garage Area | 681 |
| Covered Lanai | 309 |
| Entry Area | 36 |
| Total Area | 4,676 |
Sq. Footage
| Living Area | 2,169 |
| Garage Area | 605 |
| Covered Lanai | 313 |
| Entry Area | 129 |
| Total Area | 3,216 |
Sq. Footage
| Living Area | 1,954 |
| Garage Area | 658 |
| Covered Lanai | 172 |
| Entry Area | 47 |
| Total Area | 2,831 |
Sq. Footage
| Living Area | 1,851 |
| Garage Area | 658 |
| Covered Lanai | 275 |
| Entry Area | 47 |
| Total Area | 2,831 |
Sq. Footage
| Living Area | 2,015 |
| Garage Area | 406 |
| Covered Lanai | 101 |
| Entry Area | 76 |
| Total Area | 2,598 |
*Prices on floor plans, features, specifications, and materials are subject to change without notice. Prices are based on a standard city water and sewer Cape Coral lot. Additional costs may be incurred on oversized lots or excessive clearing required. Room dimensions are approximate. The price is for base-level options and does not include upgrades and lot/land.
Sq. Footage
| Living Area | 1,667 |
| Garage Area | 441 |
| Covered Lanai | 100 |
| Entry Area | 47 |
| Total Area | 2,255 |
*Prices on floor plans, features, specifications, and materials are subject to change without notice. Prices are based on a standard city water and sewer Cape Coral lot. Additional costs may be incurred on oversized lots or excessive clearing required. Room dimensions are approximate. The price is for base-level options and does not include upgrades and lot/land.